
Alpine Construction, LLC has over 25 years of experience in the construction of dams and water related structures. Recent projects have included repair work, rehabilitation and construction of dams, abutments, and retaining walls.
Alpine also has the ability to provide Design Build Services.

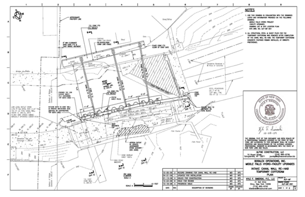
Project: Intake Canal Wall Rehabilitation
Description/Highlights:
-Design Build Contract with Owner
-Assist with FERC and NYSDEC permitting
-Cofferdam design concept that allowed operation of the facility during rehabilitation of canal wall
-Demolition of existing stone masonry and concrete dam
-Reinforced concrete gravity structure
-Trash and ice sluice incorporated into the new canal wall section